2 pokoje, świetny rozkład, cicha okolica

Mieszkanie na sprzedaż
530 000,00 PLN , Pow. 33,24 m2
Drukuj ofertę
Drukuj ofertę
Typ nieruchomości:
Mieszkanie
Powierzchnia:
33,24 m2
Typ transakcji:
sprzedaż
Liczba pokoi:
2
Lokalizacja:
Warszawa Praga-Południe , Zagójska
Rok budowy:
1965
Piętro:
2 na 4
Numer oferty:
833843
Cena za m2:
15 944,65 PLN
Ustawne, funkcjonalne i jasne, 2 pokojowe mieszkanie na warszawskiej Pradze Południe, położone na 2 piętrze czteropiętrowego bloku z windą z 1965 roku przy ul. Zagójskiej 10/12. Nieruchomość idealna dla singla, pary oraz pod wynajem.

Budynek usytuowany jest w jednej z najatrakcyjniejszych części dzielnicy. Z jednej strony bliskość Parku Józefa Polińskiego, Parku im. płk. Jana Szypowskiego „Leśnika” oraz Parku Znicza, niezwykle urokliwych terenów zielonych docenianych przez mieszkańców Warszawy, zapewniających wyciszenie i kontakt z naturą, z drugiej zaś wygodny dostęp do infrastruktury handlowo - usługowej oferowanej przez dzielnicę Praga Południe.

Do kolejnych, niewątpliwych atutów mieszkania należą:
- rozkład charakteryzujący się świetną ergonomią poszczególnych pomieszczeń,
- wschodnia ekspozycja okien zapewniająca odpowiednią ilość światła i ciepła,
- balkon z widokiem na bujną zieleń,
- lokalizacja gwarantująca świetną komunikację z resztą stolicy (blisko przystanki tramwajowe i autobusowe), jednocześnie oferując ciszę i spokój na wyciągnięcie ręki.

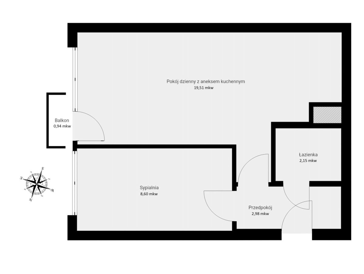
Mieszkanie o łącznej powierzchni 33,24 m² składa się z następujących pomieszczeń:
- przestronny pokój dzienny z funkcjonalnym aneksem kuchennym (19,51 m²) z wyjściem na balkon (0,94 m²),
- ustawna sypialnia (8,60 m²),
- łazienka z wanną (2,15 m²),
- przedpokój (2,98 m²) z dużą szafą w zabudowie oraz pawlaczem.

W cenie mieszkania piwnica o powierzchni 3,25 m².

Budynek zarządzany przez sprawnie działającą wspólnotę mieszkaniową, zadbany, regularnie sprzątany i modernizowany. Dookoła dużo zieleni oraz mnóstwo ogólnodostępnych i bezpłatnych miejsc postojowych.

Stan prawny nieruchomości to pełna własność. Wszystkie media miejskie. W kuchni gaz. Aktualny czynsz wynosi 608 zł. Mieszkanie zostało odmalowane na początku września 2025 roku. Sprzęt AGD oraz istotna część mebli widoczna na zdjęciach wliczona w cenę.

LOKALIZACJA:
W pobliżu pełna infrastruktura handlowo - usługowa. W zasięgu krótkiego spaceru są sklepy spożywcze, piekarnie, supermarkety, Galeria Rondo Wiatraczna, przedszkola prywatne i państwowe, szkoły podstawowe, licea ogólnokształcące, technika, szkoły wyższe, przychodnie lekarskie, apteki, Park Józefa Polińskiego, Park im. płk. Jana Szypowskiego „Leśnika”, Park Znicza, skwery, place zabaw, siłownie, kluby fitness, restauracje oraz kawiarnie.

KOMUNIKACJA:
Do przystanków licznych linii tramwajowych i autobusowych, dzięki którym sprawnie dostaniemy się w każdą część stolicy, ok. 600 m.
Podobna odległość jest do planowanej Stacji Metra Rondo Wiatraczna.

Oferta na wyłączność, dostępna tylko w naszym biurze.
Zapraszam do kontaktu oraz na prezentację mieszkania.

Michał Bartosiak
Trust Estate
888 784 790
www.trustestate.pl
Adres strony www: https://www.trustestate.pl
Nieprawidłowy adres E-mail